西安厨房翻新

家里的地漏堵塞了怎么办?

2019-04-19 15:15:37173人浏览

地漏大家可能都知道,在卫生间里一般都会安装地漏.地漏的牌子伴随着人们生活水平不断的提高,也在日益的增多.可是具体的品牌有哪些呢...

旧房翻新新房装修之木地板怎么选择

2019-04-18 11:13:51129人浏览

不管是新房装修还是旧房翻新,木地板是很多家庭的别被选择之一,尤其是家里有小baby的,今天,我们不介绍其他的,就介绍地板的选择和...

墙面壁纸都哪些,在旧房翻新时壁纸应该怎么选?

2019-04-16 14:51:05166人浏览

随着时代的肥螋发展,墙面壁纸的种类,私彩,图案,越来越丰富,很多壁纸都安全环保,施工方便、价格适宜而逐渐的走入了我们的生活...

装修公司在装修的时候的装修分类

2019-04-13 09:37:24185人浏览

导读:在找装修公司在装修的时候,一般要知道装修公司的基本分类,看看哪一种装修公司更加符合自己的家装风味。...

如何看待装修公司的工人技术水平

2019-04-13 09:33:5380人浏览

导读:在装修公司挑选工人的时候,装修工人如何管理好装修工人业主们首先要知道一点,现在的装修工人大部分是农民工,还不能真正称...

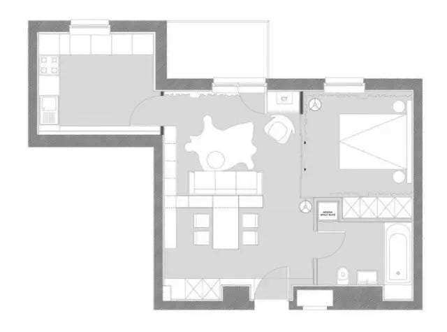
设计师支招——不规则户型这样搞就很漂亮!

2019-04-13 09:33:02100人浏览

新买的楼房,如果遇上奇葩户型怎么办?不规则的空间凹位怎样设计才能解决难看的问题?小品整理了一些比较特殊的不规则户型解决大招...